ID CP2907146

Proprietate comercială premium de vânzare- teren 3.728 mp | Lângă A0

ID CP2907146

1,769,000 € (negociabil) + 21% TVA

Spațiu de birouri de vânzare
Glina
1,769 mp
2007

Clădire birouri modernă + teren 3.728 mp | Acces 3 străzi | Lângă A0

Se oferă spre vânzare o proprietate comercială complexă, cu potențial ridicat de dezvoltare, ideală pentru sediu de companie, hub de birouri, centru logistic, medical, IT, educațional sau mixt birouri–depozitare, amplasată strategic, la doar 500 m de intersecția cu Autostrada A0.

Proprietatea beneficiază de vizibilitate excelentă, acces facil pentru trafic auto și logistic și deschidere la 3 străzi, un avantaj major pentru orice activitate comercială.

📐 Date teren

Suprafață teren: 3.728 mp

Teren generos, ce permite:

parcări extinse

zone de acces TIR / logistic

oportunitatea construirii unei hale sau depozit, complementar clădirii de birouri

🏢 Clădire birouri – total 1.770 mp construiți

Clădirea se remarcă printr-o arhitectură modernă, cu linii curate, suprafețe vitrate mari și un design orientat către lumină naturală și confortul utilizatorilor.

Regim de înălțime și compartimentare:

Subsol tehnic + adăpost ALA: 120 mp

– spații tehnice + zonă de protecție, un plus important pentru siguranță și funcționalitate

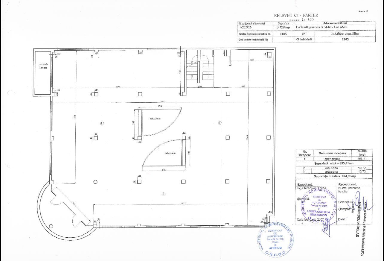
Parter: 475 mp

– ideal pentru recepție, showroom, zonă de relații cu publicul, birouri operaționale

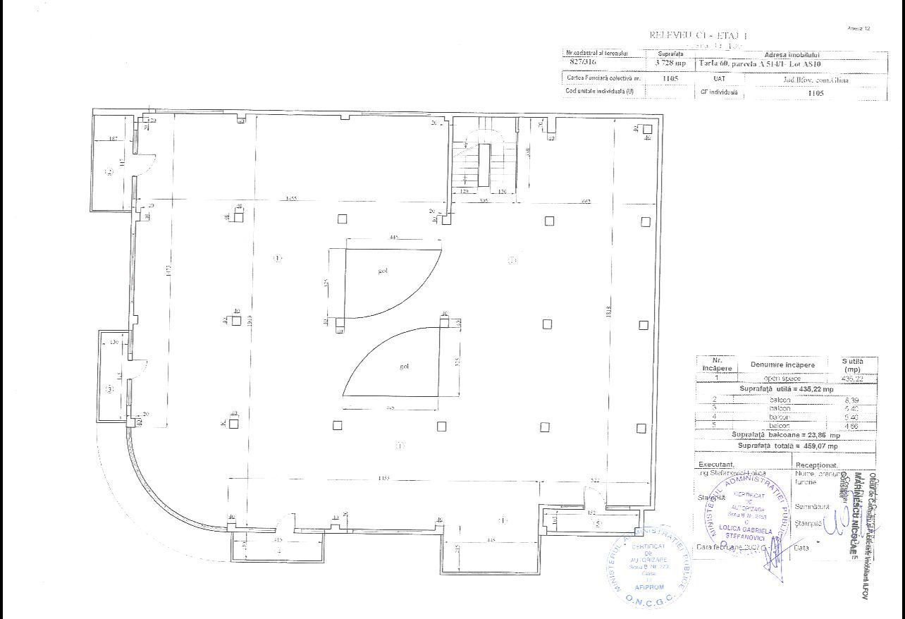
Etaj 1: 460 mp

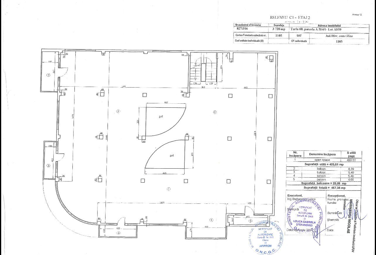
Etaj 2: 460 mp

– etaje eficiente pentru birouri open-space, cabinete, săli de ședință, spații administrative

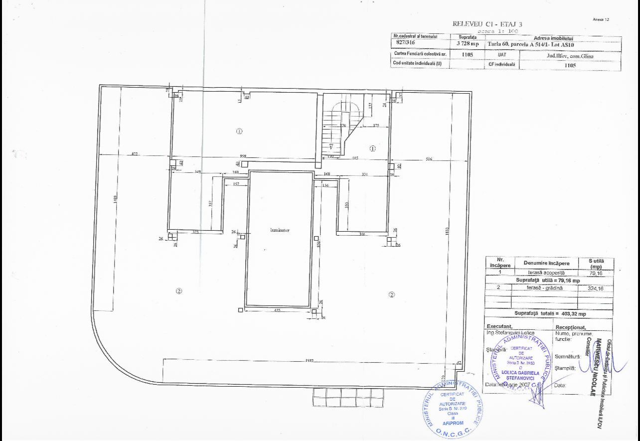
Etaj 3: 80 mp interior

terasă / grădină de aprox. 325 mp

🌿 Element diferențiator major – terasa verde

La etajul 3 se află un spațiu de relaxare unic, compus din:

zonă interioară +

terasă / grădină de 325 mp

Perfect pentru:

zonă de relaxare pentru angajați

evenimente corporate

spațiu social / lounge

cafenea internă sau zonă de networking

Acest tip de spațiu crește semnificativ atractivitatea clădirii pentru chiriași sau angajați.

☀️ Caracteristici generale ale clădirii

Arhitectură contemporană, reprezentativă

Suprafețe vitrate mari → lumină naturală abundentă

Spații ușor de recompartimentat în funcție de activitate

Clădire potrivită pentru activități de birouri, servicii, sedii administrative, centre de training etc.

🚛 Acces & poziționare strategică

Deschidere la 3 străzi – acces facil din mai multe direcții

La doar 500 m de nodul rutier A0

Conectivitate excelentă pentru:

distribuție

logistică

angajați din zone diferite ale orașului și din exterior

💼 Potențial investițional

Proprietatea este ideală pentru:

sediu central companie

clădire multi-tenant (birouri de închiriat)

combinație birouri + hală/depozit (prin dezvoltare ulterioară)

clinică medicală, centru educațional, IT hub, centru logistic administrativ

Terenul generos + poziția lângă A0 oferă posibilități reale de extindere și creștere a valorii investiției.

Citește mai mult

  • Tip imobil
    Clădire birouri
  • Etaj
    Parter, 1, 2, 3
  • Clasă birouri
    A
  • Număr băi
    4
  • Suprafață construită
    1,769 mp
  • Număr terase
    9
  • Suprafață utilă
    1,769 mp
  • Disponibilitate
    Imediat
  • Suprafață totală birouri
    1,400 mp
  • Compartimentare spațiu
    Open space
  • Parcări suprafață
    50
  • Parcări suprafață disponibile
    50
  • An construcție
    2007
  • Construcție nouă
    Da
  • Număr etaje clădire
    2
  • Număr etaje retrase
    1
  • Număr subsoluri
    1

Facilități

Afișare logo pe clădire
Internet
Parcare deschisă
Recepție
Sistem de alarmă
Sistem de ventilație
Telefon
Vedere panoramică
Vestiar
George Duduna - REALISTO
George Duduna
Consultant Partener

0744787878


Solicită chiar acum o vizionare
Telefon
Sună acum Solicită vizionare
Necesare:

Site-ul nu poate funcționa corect fără aceste cookie-uri. Vezi cookie-urile

Statistică:

Strângem statistici anonime despre voi, vizitatorii unici, pentru a vă îmbunătăți experiența dumneavoastră. Vezi cookie-urile

Marketing:

Pentru a ne promova mai eficient serviciile noastre, folosim cookies pentru a vă identifica și a vă oferi proprietăți și servicii personalizate. Vezi cookie-urile

Acest site folosește cookies, află detalii. Alege ce tipuri de cookies dorești să permitem: