ID CP2499770

Vila Individuala | Iancu Nicolae/Pipera | Piscina | Garaj

Această proprietate nu mai este activă,
te invităm să vizualizezi proprietăți similare

ID CP2499770

740,000 €

Casă / Vilă cu 6 camere de vânzare
Iancu Nicolae, Bucuresti
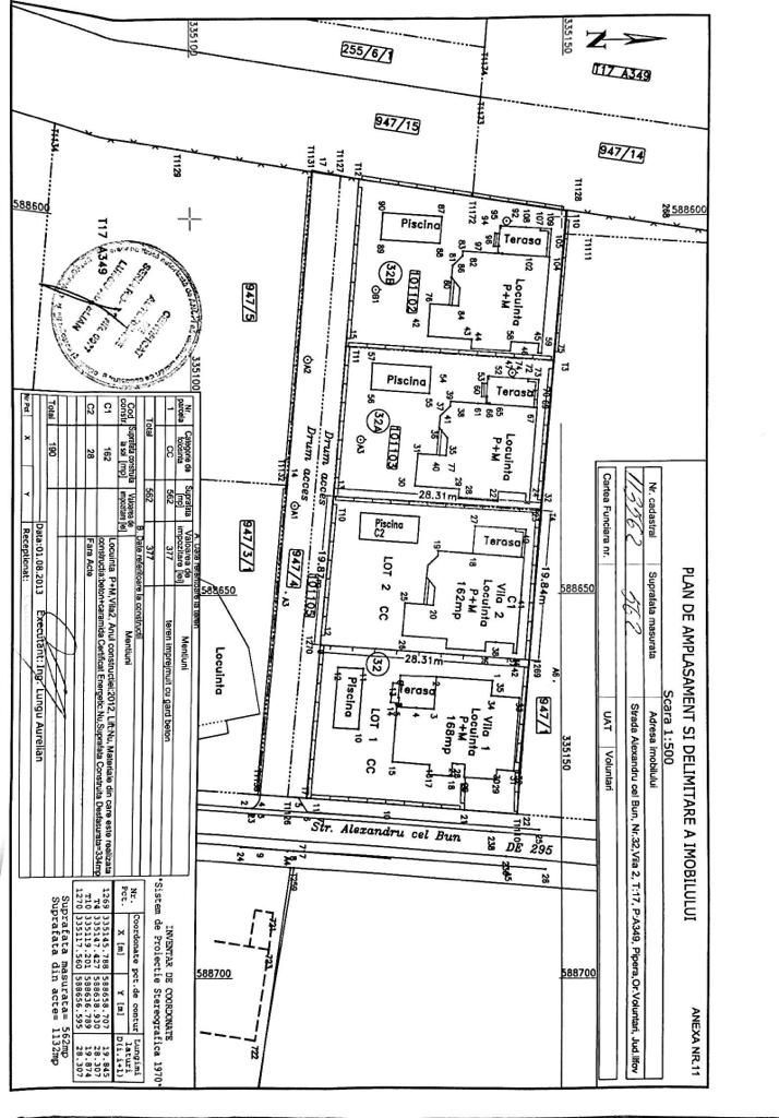
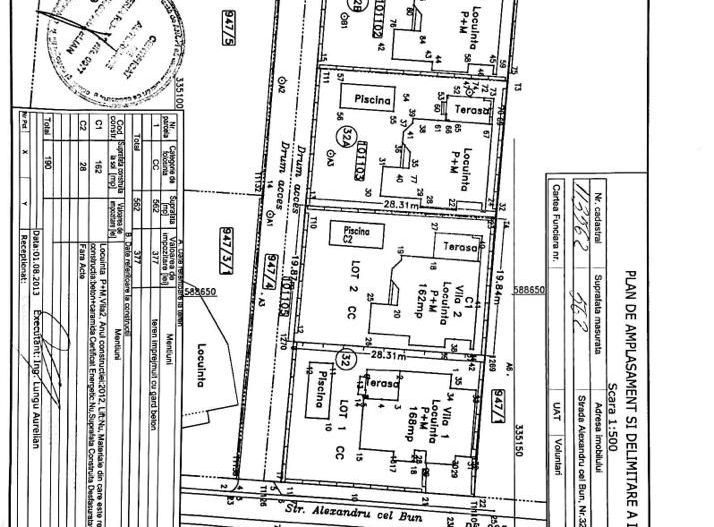
292 mp
2010

Va propunem spre vânzare o Vila superba situată în zona de Nord a Capitalei.

Vila este individuala cu piscina proprie si o curte de aproximativ 400 mp.

Accesul în curte este pe telecomanda cu garaj propriu pentru o mașină, de asemenea si pentru a doua mașină care parte fi parcata în curtea casei.

Compartimentare:

- Parter: Hol de intrare cu spații de dressing; Living generos si luminos; Bucătărie cu ieșire spre terasa; Baie de serviciu cu dus; Birou care poate fi folosit ca si un dormitor; Camera tehnica; debara; acces spre garaj din casa.

- Etaj: 1 dormitor matrimonial cu baie si dressing; 2 dormitor matrimonial cu baie si dressing; 3 dormitor matrimonial cu dressing; 4 dormitor; hol.

La moment Vila este închiriată pana în luna Decembrie a acestui an. Se poate prelua cu tot cu chiriași.

Prețul pentru vânzare este de 740.000 si nu se aplica tva.

Pentru mai multe detalii sau stabilirea unei vizionari mă puteți contacta!

Citește mai mult

  • Număr camere
    6
  • Dormitoare
    5
  • Număr bucătării
    1
  • Număr băi
    4
  • Geam la baie
    Da
  • Număr balcoane
    3
  • Număr terase
    1
  • Număr garaje
    1
  • Număr locuri parcare
    2
  • Disponibilitate
    Imediat
  • Tip casă
    Individual
  • Stare interior
    Bună
  • Anul finisării
    2010
  • Suprafață utilă
    292 mp
  • Suprafață construită
    335 mp
  • Suprafață teren
    580 mp
  • Suprafață curte
    400 mp
  • Suprafață curte liberă
    400 mp
  • Deschidere
    50 m
  • Stadiu construcție
    Finalizată
  • An construcție
    2010
  • Construcție nouă
    Da
  • Număr etaje clădire
    1

Facilități

Aer condiționat
Apă
Apometre
Aragaz
Bideu
Bucătărie deschisă
Cabină de duș
Cadă
Calorifere
Canalizare
CATV
Centrală proprie
Contor căldură
Contor electric
Contor gaz
Curent
Curte
Debara
Dressing
Faianță
Frigider
Garaj
Gaz
Geamuri termopan
Grădină proprie
Gresie
Hotă
Iluminat stradal
Internet
Irigații
Mașină de spălat rufe
Mașină de spălat vase
Mijloace de transport în comun
Mobilat parțial
Parchet
Spălătorie
Străzi asfaltate
Telecomandă poartă acces auto
Telecomandă poartă garaj
Telefon
Ușă intrare lemn
Uși interior lemn
Vopsea lavabilă
WC Serviciu
Zonă pentru barbeque
Necesare:

Site-ul nu poate funcționa corect fără aceste cookie-uri. Vezi cookie-urile

Statistică:

Strângem statistici anonime despre voi, vizitatorii unici, pentru a vă îmbunătăți experiența dumneavoastră. Vezi cookie-urile

Marketing:

Pentru a ne promova mai eficient serviciile noastre, folosim cookies pentru a vă identifica și a vă oferi proprietăți și servicii personalizate. Vezi cookie-urile

Acest site folosește cookies, află detalii. Alege ce tipuri de cookies dorești să permitem: